Videre til indhold
Forside
Byggerådgiver
Byggetilladelser
Certificeret Brandrådgiver
Sammenlægning af lejligheder
Andelsforeninger
Cases
Kontakt
Forside
Byggerådgiver
Byggetilladelser
Certificeret Brandrådgiver
Sammenlægning af lejligheder
Andelsforeninger
Cases
Kontakt
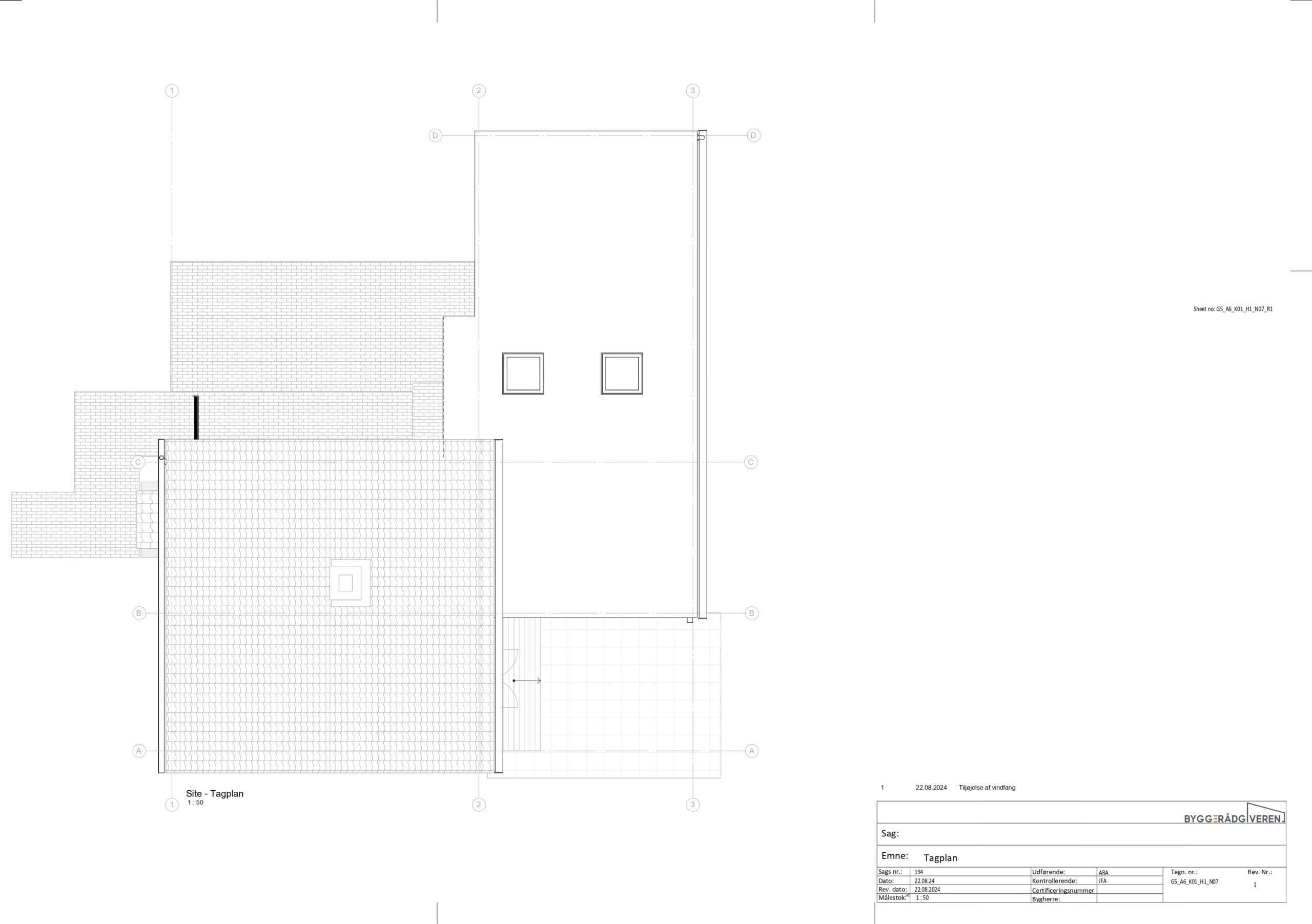
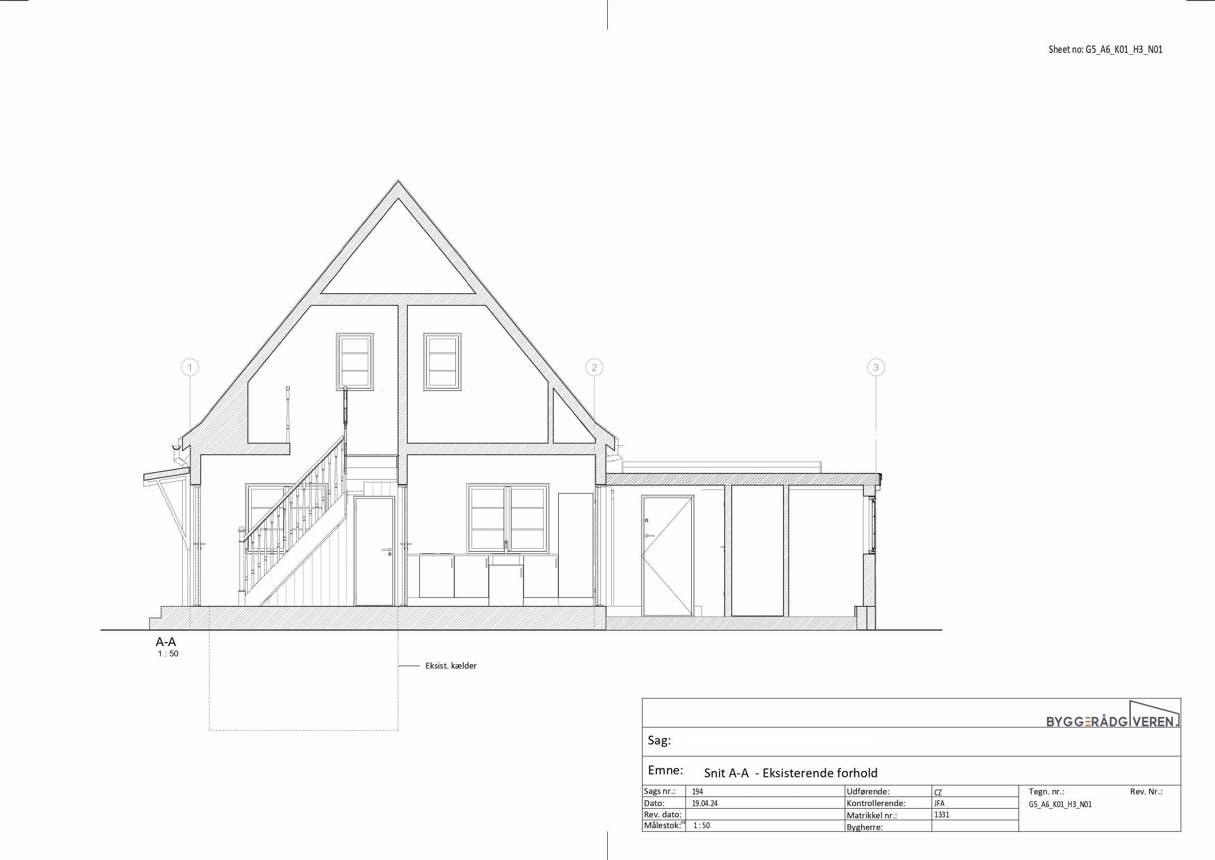
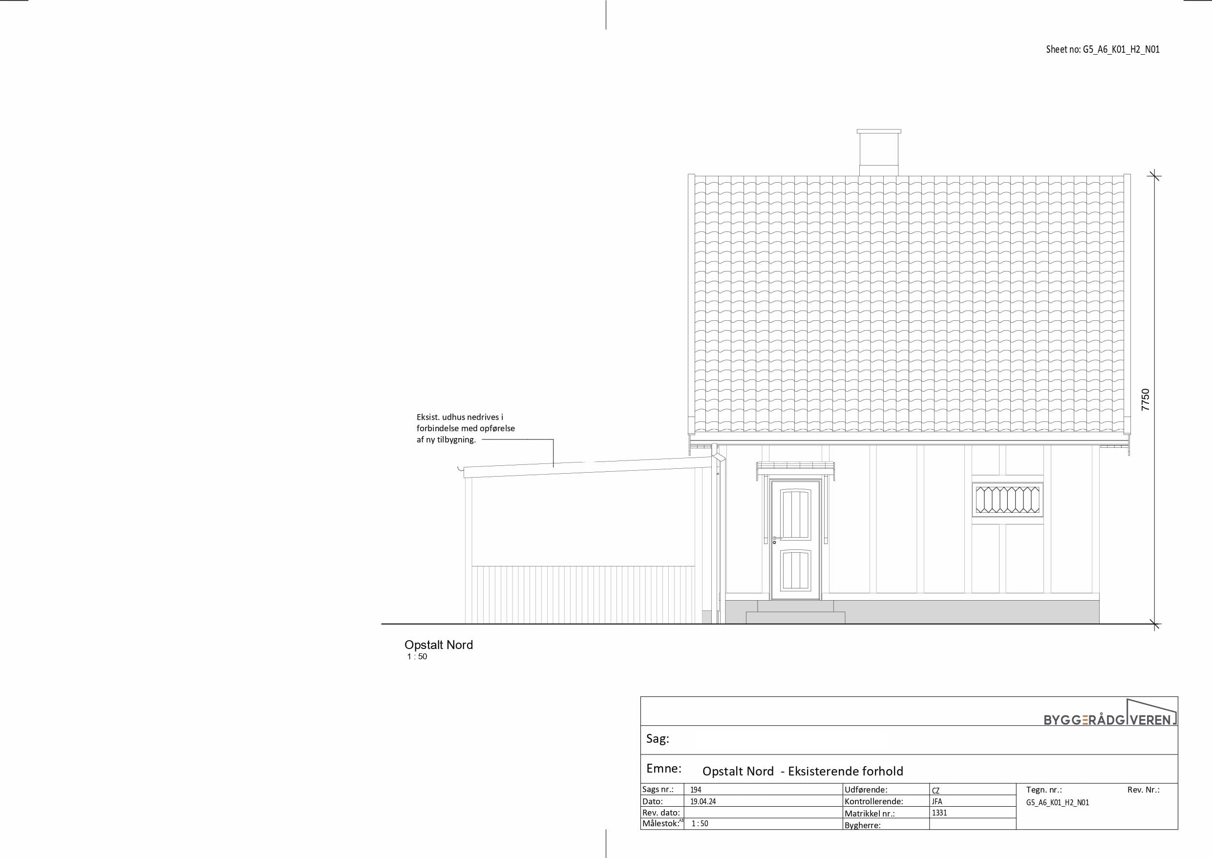
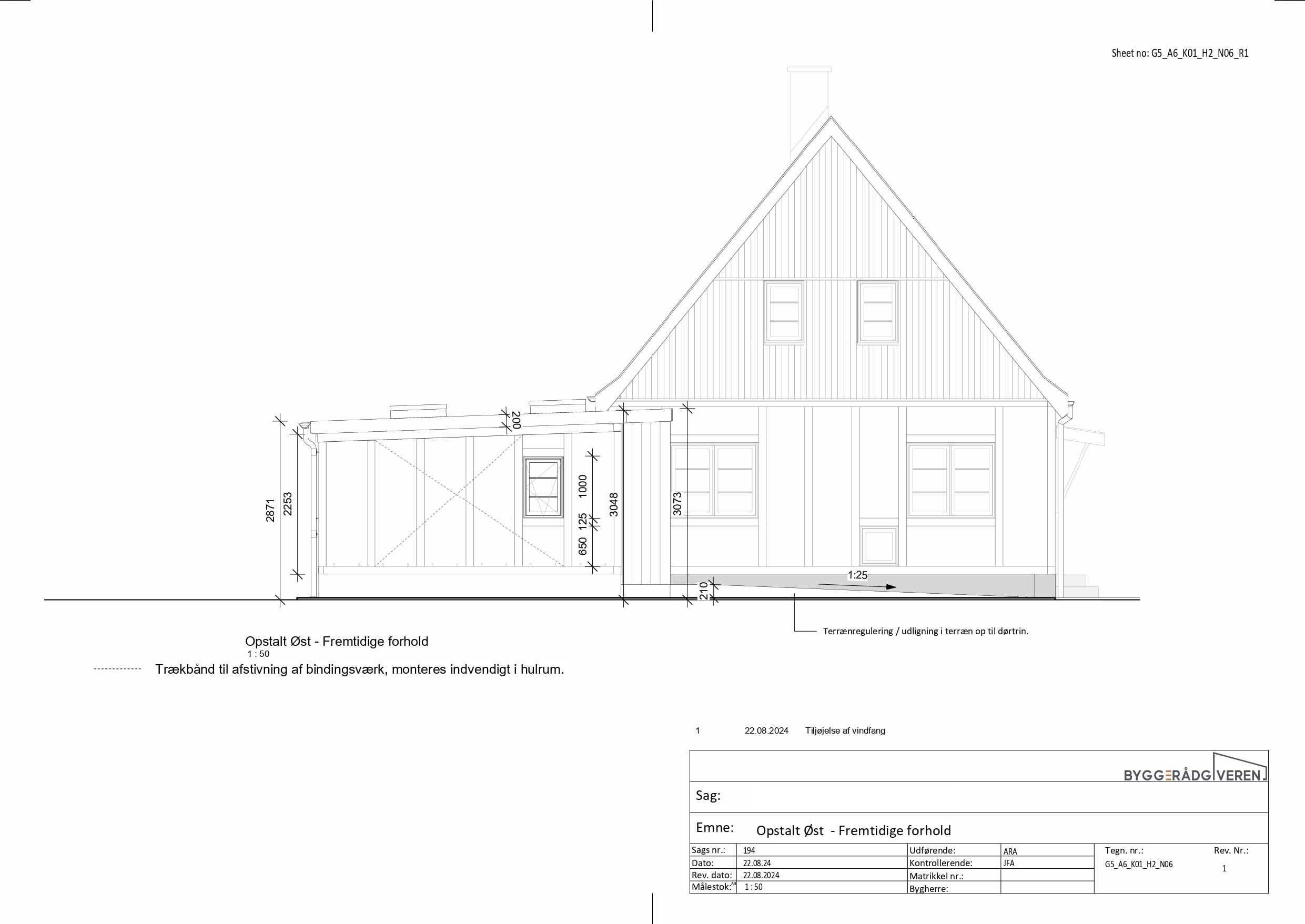
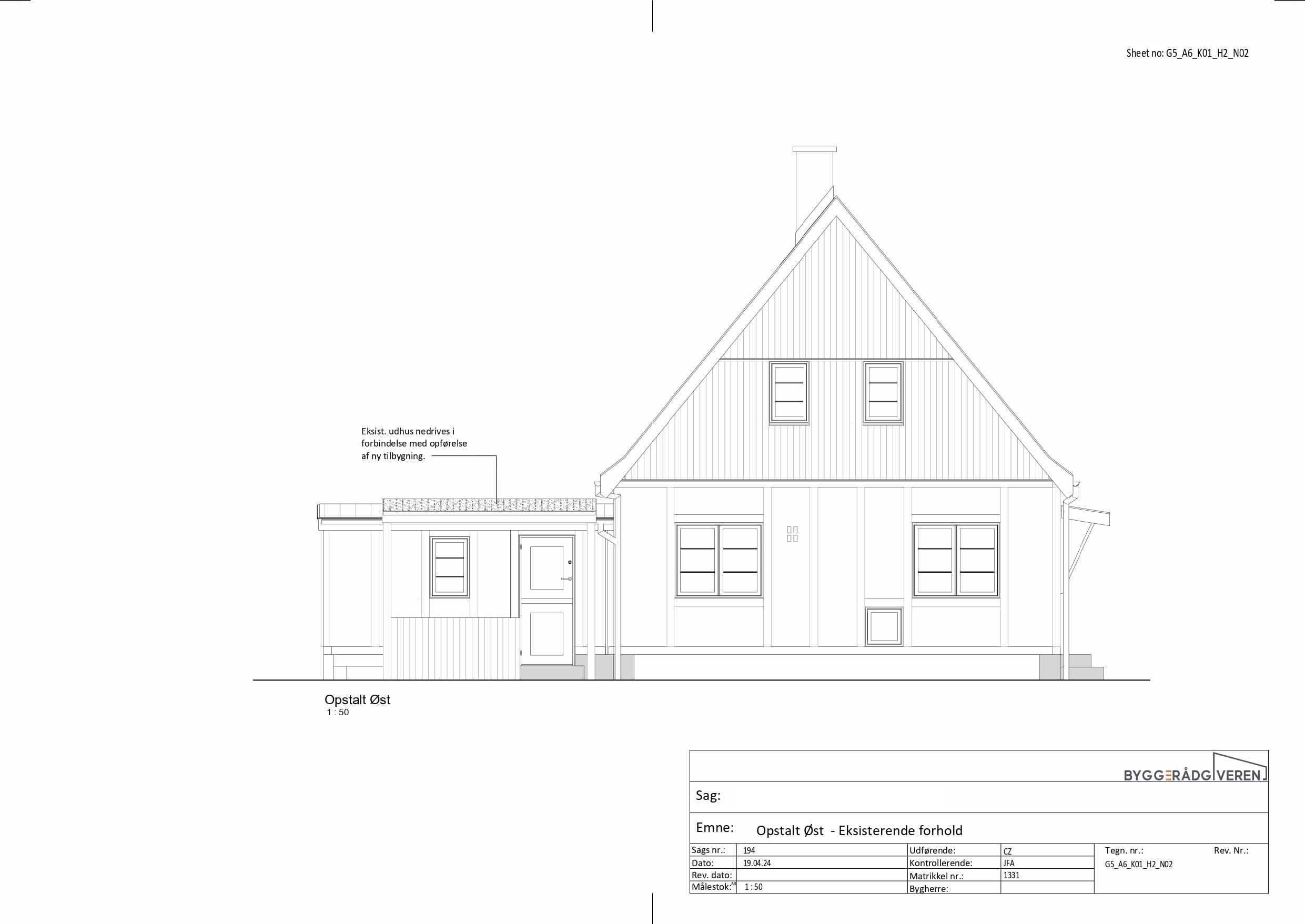
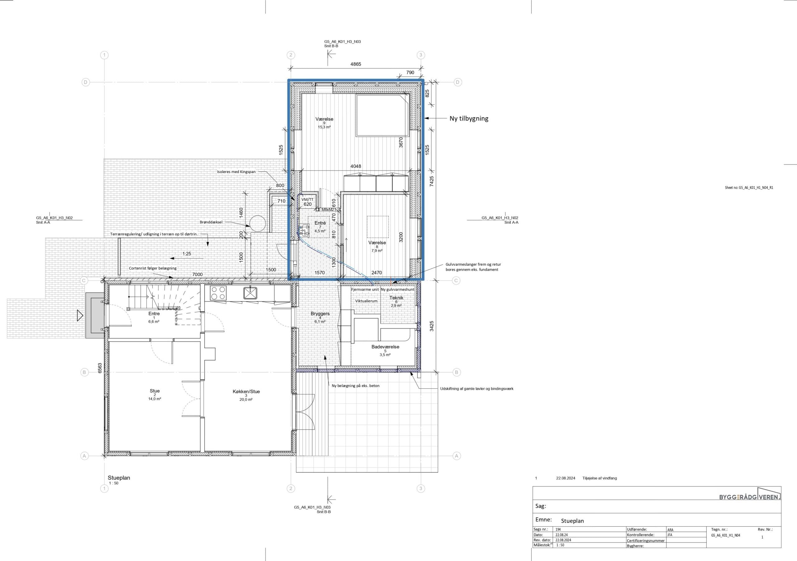
Projektering af tilbygning til bindingsværkshus i Brønshøj
Projektering af tilbygning til bindingsværkshus i Brønshøj
Kontakt mig
Kontakt os i dag
jan@byggeradgiveren.dk
+45 51 40 77 80